




ABN203c 150A từ khi có mặt trên thị trường cho đến nay vẫn được nhiều người ưa chuộng. Sở hữu nhiều tinh năng vượt trội, sản phẩm đang được Etinco cung cấp với chất lượng đạt chuẩn cùng mức giá hợp lý, đang được rất nhiều khách hàng tin tưởng lựa chọn.
1. Tổng quan về ABN203c 150A
ABN203c 150A của thương hiệu LS là một MCCB (Miniature Circuit Breaker) chất lượng vượt trội, phù hợp với tiêu chuẩn IEC 947-2. Được thiết kế với tính năng hoạt động bằng tay bao, MCCB LS này mang đến sự an toàn và kiểm soát cho hệ thống điện. Sản phẩm được sử dụng rộng rãi ở các công trình dân dụng, công nghiệp, nhà máy và tàu thủy.
Với dòng điện định mức lên đến 150A, ABN203c có khả năng xử lý đường dòng điện mã trong 1 giây lên đến 30kA. Bởi vậy mà đây đã trở thành một lựa chọn ưu việt cho các ứng dụng trong các công trình dân dụng và các công trình lớn. Điện áp định mức của dòng điện là 400V hoặc 440V, điều này đảm bảo rằng nó có thể sử dụng rộng rãi trong nhiều môi trường điện khác nhau.
Sản phẩm ABN203c được sản xuất trên dây chuyền công nghệ tiên tiến, hiện đại nhất của Hàn Quốc, chất lượng tốt, đáp ứng các yêu cầu kỹ thuật của ngành điện, đảm bảo an toàn cho người sử dụng, giá cả hợp lý.
Về nguyên tắc hoạt động: Khi lắp đặt aptomat MCCB ABN203c 150A khoảng cách an toàn luôn được giữ giữa tấm và máy, thanh và các thiết bị bảo vệ khác. Khi xảy ra gián đoạn mạch ngắn, áp suất nhiệt độ cao trong hồ quang điện bị cắt để ngăn chặn dòng điện gây cháy.

2. Thông số kỹ thuật của ABN203c 150A
Tên sản phẩm | MCCB ABN203c 150A LS |
Số cực | 3 |
Dòng điện định mức | 150A |
Frame size | 250AF |
Dòng cắt ngắn mạch | 30kA |
Tiêu chuẩn | IEC-60947-2 |
Xung điện áp | 8kV |
Điện áp cách điện | 750V |
Xuất xứ | Hàn Quốc |
3. Đặc điểm nổi trội của MCCB 3P 150A LS
MCCB 3P 150A LS sở hữu những đặc điểm nổi trội như sau:
- MCCB ABN203c 150A được thiết kế thông minh, giúp người dùng dễ dàng lắp đặt và bảo trì. Điều này đảm bảo rằng nó hoạt động ổn định và có thể được quản lý một cách hiệu quả.
- ABN203c 150A LS cung cấp giải pháp kinh tế cho việc đóng ngắt mạch với kích thước nhỏ gọn. Từ đó giúp tiết kiệm không gian lắp đặt và làm cho nó phù hợp cho nhiều ứng dụng trong hệ thống điện.
- Với độ bền cơ lên đến 25000 lần đóng/cắt, MCCB 3P 150A LS là một sản phẩm vô cùng bền bỉ và đáng tin cậy. Nó có thể hoạt động ổn định trong thời gian dài mà không cần sửa chữa hoặc thay thế.
- Thiết bị có độ bền điện lên đến 10000 lần, đảm bảo tuổi thọ dài và đáng tin cậy. Bởi vậy, sản phẩm giúp tiết kiệm thời gian và tối đa hóa hiệu suất của hệ thống điện mà không cần lo lắng về việc sửa chữa hoặc đổi trả.

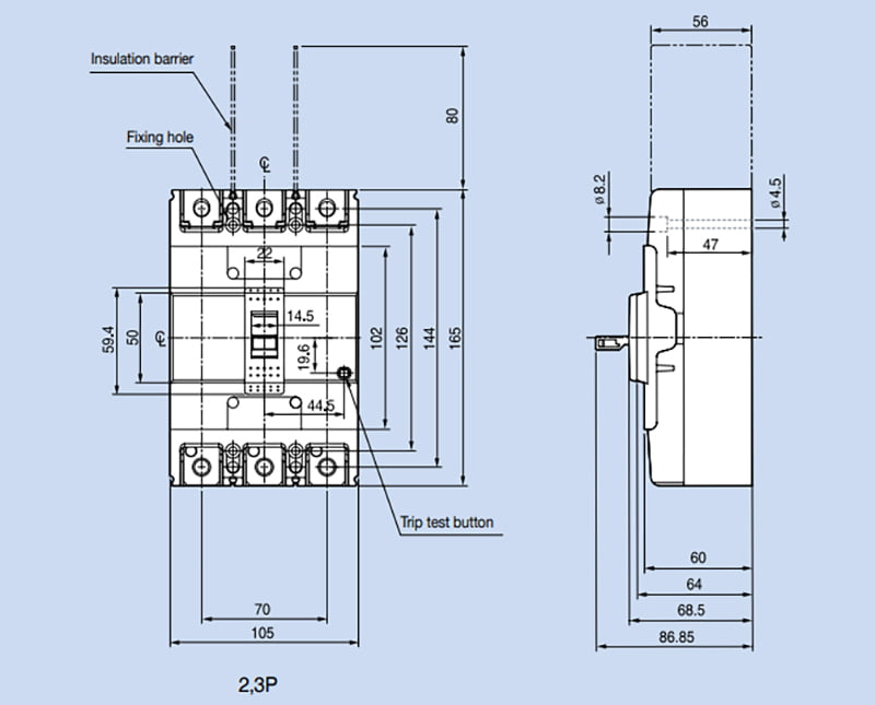
4. Kích thước ABN203c 150A

5. ABN203c 150A hình ảnh thực tế
6. Ứng dụng của MCCB 150A LS trong thực tế
CB 3 pha 150A được nhiều người tin dùng trong hệ thống điện và có nhiều ứng dụng thực tế:
- MCCB 150A được sử dụng rộng rãi trong các môi trường công nghiệp và sản xuất để bảo vệ các máy móc, thiết bị và hệ thống điện khỏi nguy cơ quá tải hoặc ngắn mạch. Dòng sản phẩm này giúp đảm bảo an toàn cho các quy trình sản xuất và ngăn chặn sự cố điện nguy hiểm.
- MCCB LS thường được sử dụng trong cơ sở hạ tầng như tòa nhà cao tầng, nhà máy, và hệ thống điện của thành phố để kiểm soát dòng điện và bảo vệ hệ thống khỏi sự cố điện.
- Trong môi trường dân dụng, thiết bị này cũng thường được sử dụng trong các tủ điện, tòa nhà chung cư, và nhà riêng để bảo vệ các thiết bị gia đình và ngăn chặn nguy cơ cháy nổ do ngắn mạch hoặc quá tải.
- MCCB được sử dụng trong các cơ sở sản xuất điện, như nhà máy nhiệt điện hoặc thủy điện, để kiểm soát và bảo vệ hệ thống sản xuất năng lượng và đảm bảo rằng năng lượng điện được phân phối an toàn và ổn định đến các hộ tiêu dùng.

7. Đơn vị cung cấp ABN203c 150A giá tốt hàng đầu
Với nhiều năm hoạt động trong ngành, Etinco cam kết cung cấp những dòng sản phẩm thiết bị điện chất lượng nhất trong đó có ABN203c 150A được nhập trực tiếp từ LS Hàn Quốc, một trong những thương hiệu điện hàng đầu trên thị trường. Điều này đồng nghĩa với việc quý khách hàng nhận được một sản phẩm chất lượng vượt trội, được sản xuất bằng công nghệ hiện đại và tuân thủ tiêu chuẩn chất lượng châu Âu.
Đội ngũ tư vấn chuyên nghiệp của Etinco luôn sẵn lòng hỗ trợ quý khách hàng trong quá trình chọn lựa sản phẩm. Bên cạnh đó, các sản phẩm tại đây đều được bảo hành đầy đủ, giúp khách hàng an tâm hơn khi chọn mua.
Tham khảo sản phẩm MCCB LS khác mà bạn muốn tìm tại đây
MCCB 125a LS | ABN103c | ABN203c | ABN53c |
MCCB 500a | ABN403c | ABN803c | MCCB 200a |
ABN403C 400a | ABN52c | ABN803c 630a | MCCB 1600a |
MCCB 400a LS | ABN103c 75a | ABN53c 20a | ABS1003b |
MCCB 10a |
Thông tin liên hệ:
- Công ty: Công Ty TNHH Etinco
- Địa chỉ: Số 33, BT5 Khu đô thị Pháp Vân, Hoàng Liệt, Hoàng Mai, Hà Nội
- Điện thoại: 024 3668732
- Email: sale@etinco.vn
MCCB ABN203c 150A là thiết bị điện được nhiều người tin tưởng lựa chọn nhờ những tính năng và ưu điểm mà nó mang lại. Đặc biệt, khách hàng hoàn toàn có thể yên tâm khi chọn mua các dòng sản phẩm chất lượng tốt với mức giá phải chăng tại Etinco